Tipologie di immobile
Appartamento Ufficio Cantina Locali Box Parcheggio Cessione di diritti all'affito Cessione di esercizi commerciali Edificio Altro prodottoPrezzo
Spazio vitale
Fontvieille / Le Grand Large
L'affitto25 000 € / mese
Spese1900 € / mese
rif LMIL0255
Tipologia di immobileUfficio
Area abitabile.290 Mq
Area totale290 Mq
PianoPiano terra
N° di locali6
Parcheggi(o)2
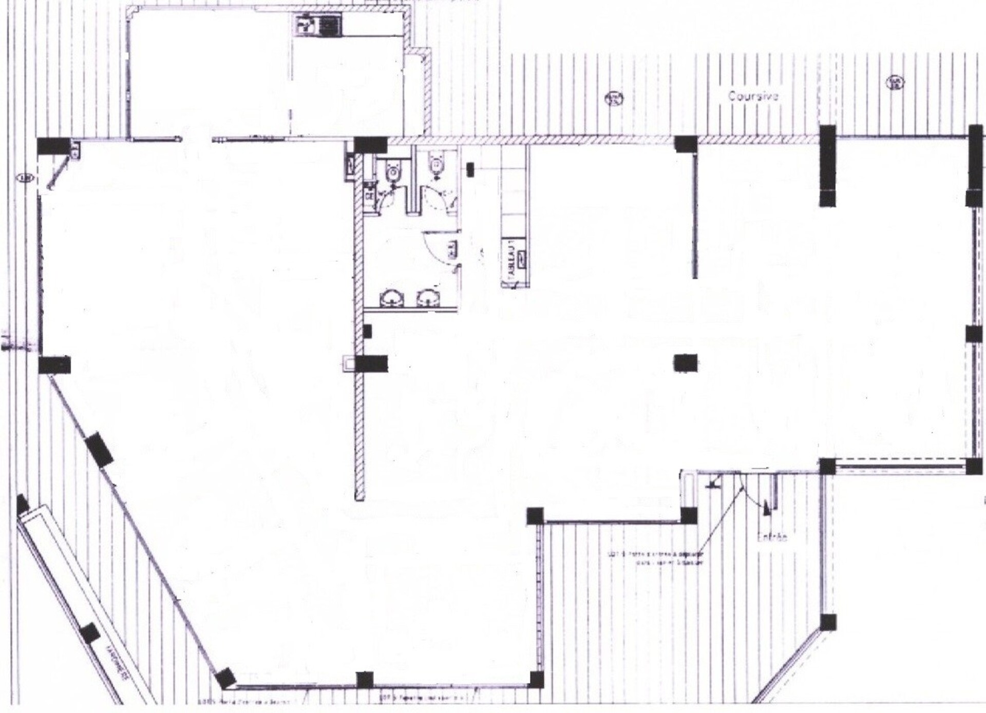
A Fontvieille splendidi uffici di 290 m² (parzialmente arredati e attrezzati) affacciati sul mare. Molto luminoso
Gli uffici comprendono: uno spazio aperto, una grande sala riunioni o ufficio esecutivo, diversi uffici, una sala archiviazione, una sala computer, un corridoio, servizi bagni (per uomini e donne), una cucina completamente attrezzata, un'area relax.
2 parcheggi completano questa proprietà
Possibilità di locazione commerciale
Tipologie di immobile
Appartamento Ufficio Cantina Locali Box Parcheggio Cessione di diritti all'affito Cessione di esercizi commerciali Edificio Altro prodottoPrezzo
Spazio vitale
Affitti a Monaco - Ufficio - +5 locali - Fontvieille